Grenoble Chantier
PRESTATIONS
ÉTUDE ET BUDGET
SUIVI DES TRAVAUX
MAITRE D'OEUVRE
THÈMES ET MÉTIERS
MAISON
EXTENSION
PLANS CONCEPTION
RESTRUCTURATION D'APPARTEMENTS
DÉMOLITIONS
COUVERTURE CHARPENTE
MAÇONNERIE DALLES
MAÇONNERIE RENFORT DE STRUCTURE
MAÇONNERIE CRÉATIONS D'OUVERTURES
FAÇADES ET BALCONS
ESCALIERS
PLOMBERIE RÉSEAUX ASSAINISSEMENT
CRÉATION DE MEZZANINES
MENUISERIES EXTÉRIEURES, GALANDAGES ET VERANDA
VERRIÈRES: LAISSER RENTRER LA LUMIÈRE
ENERGIE CHAUFFAGE CLIMATISATION
ELECTRICITÉ
PLATRERIE ISOLATION
SALLES DE BAIN ET WC
AMÉNAGEMENTS DE COMBLES
RÉNOVATIONS DE SOLS
COMMERCES ET LOCAUX PROFESSIONNELS
DÉCORATION REVÊTEMENTS PEINTURE
CRÉATION DE LOGEMENTS MEUBLÉS
CUISINES
EXTÉRIEURS TERRASSES PISCINES
SUITE PARENTALE
VERANDA
EXEMPLES DE CHANTIERS
RÉNOVATION COMPLÈTE D'UN APPARTEMENT À BARBERAZ
RÉNOVATION COMPLÈTE DE STANDING À CHAMBÉRY
RÉHABILITATION COMPLÈTE D'UNE MAISON À BOURG D'OISANS
CRÉATION MAISON NEUVE MÉAUDRE
RÉNOVATION COMPLÈTE D'UNE MAISON À GRENOBLE.
EXTENSION À CHAMPAGNIER
CRÉATION D'UN LOGEMENT DANS UN GARAGE. TERRASSE ET PISCINE
AMÉNAGEMENT MAISON ST MARTIN D'HERES. EXTENSION
RÉNOVATION DE VILLA À SAINT MARTIN D'URIAGE
CRÉATION D'UN STUDIO DANS UN GARAGE
RÉHABILITATION COMPLÈTE D'UNE ANCIENNE FERME EN SAVOIE
RÉNOVATION FAÇADE, TOITURE ET TERRASSES D'UNE MAISON À VOREPPE
CHANGEMENT DE DESTINATION. CRÉATION D'UN LOFT
CRÉATION D'UN MEUBLÉ À GRENOBLE
RÉNOVATION ET RESTRUCTURATION DUPLEX VOIRON
CHANGEMENT DE DESTINATION RUE LAFAYETTE À GRENOBLE
CRÉATION D'UNE SALLE DE BAIN DANS UNE CHAMBRE
RÉNOVATION COMPLÈTE APPARTEMENT MEYLAN
APPARTEMENT DE STANDING 111 COURS JEAN JAURÈS
CRÉATION D'UN RESTAURANT ALBERTVILLE
CRÉATION D'UNE ETUDE DE NOTAIRE À GRENOBLE
RÉNOVATION ENERGÉTIQUE D'AMPLEUR SUR JARRIE
HELIAS
UNDEFINED
CONTACT
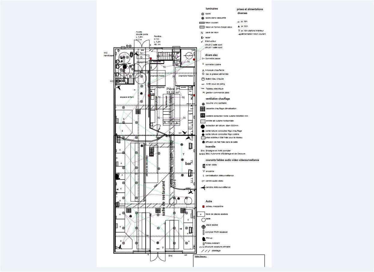
création d'un restaurant à Albertville
Voir les autres chantiers de ce thème :
Commerces et Locaux professionnels
création d'un restaurant de la chaine Emily's. Burger de luxe
Vous souhaitez me confier votre projet ?
DISCUTONS-EN
Tous nos thèmes et métiers :
MAISON
EXTENSION
PLANS CONCEPTION
RESTRUCTURATION D'APPARTEMENTS
DÉMOLITIONS
COUVERTURE CHARPENTE
MAÇONNERIE DALLES
MAÇONNERIE RENFORT DE STRUCTURE
MAÇONNERIE CRÉATIONS D'OUVERTURES
FAÇADES ET BALCONS
ESCALIERS
PLOMBERIE RÉSEAUX ASSAINISSEMENT
CRÉATION DE MEZZANINES
MENUISERIES EXTÉRIEURES, GALANDAGES ET VERANDA
VERRIÈRES: LAISSER RENTRER LA LUMIÈRE
ENERGIE CHAUFFAGE CLIMATISATION
ELECTRICITÉ
PLATRERIE ISOLATION
SALLES DE BAIN ET WC
AMÉNAGEMENTS DE COMBLES
RÉNOVATIONS DE SOLS
COMMERCES ET LOCAUX PROFESSIONNELS
DÉCORATION REVÊTEMENTS PEINTURE
CRÉATION DE LOGEMENTS MEUBLÉS
CUISINES
EXTÉRIEURS TERRASSES PISCINES
SUITE PARENTALE
VERANDA